Explore Hornet Models — Floorplans, Specs & Tow Ratings
Hornet’s travel trailers and fifth wheels, produced from 2008 to 2011, encapsulate the spirit of outdoor adventure with a range of thoughtful designs. From cozy interiors to innovative layouts, these models cater to families and explorers alike, ensuring comfortable journeys with all the essentials for memorable road trips.
Hornet Fifth Wheel Floorplans
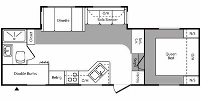
Hornet Travel Trailer Floorplans
| Plan | Model | Years | Sleeps | Length | GVWR | |
|---|---|---|---|---|---|---|
|
|
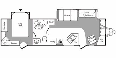
26rbs | 6 | 30' 1" | 9,485 | |
|
|
27bhs | 8 | 30' 8" | 9,555 | |
|
|
27dbs | 8 | 31' 3" | — | |
|
|
27flbs | 6 | 31' 0" | 9,730 | |
|
|
27flds | 6 | 29' 10" | — | |
|
|
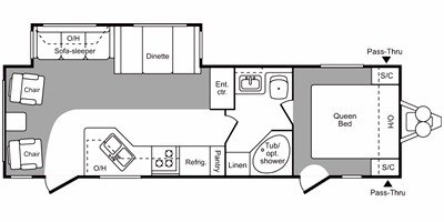
27rbs | 6 | 31' 3" | 9,460 | |
|
|
28bhds | 8 | 30' 10" | — | |
|
|
28bhs | 9 | 31' 11" | 9,720 | |
|
|
28rls | 6 | 32' 2" | 9,730 | |
|
|
29rbds | 8 | 32' 10" | — | |
|
|
29rls | 6 | 31' 8" | — | |
|
|
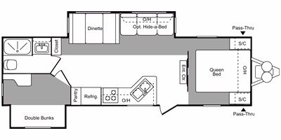
30bhs | 9 | 33' 3" | — | |
|
|
30fks | 6 | 32' 5" | — | |
|
|
30rkds | 6 | 33' 3" | 9,800 | |
|
|
31rbds | 11 | 35' 8" | 9,710 | |
|
|
31rlds | 8 | 34' 1" | 9,545 | |
|
|
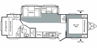
32bhbs | 10 | 36' 3" | 9,765 | |
|
|
32bhds | 10 | 36' 3" | — | |
|
|
32rlss | 8 | 34' 7" | 9,845 | |
|
|
33flds | 6 | 35' 6" | — |

Leave the Noise Behind.
Reconnect Outdoors.
Our mission is to help people make well-informed RV buying decisions, so they can leave the noise and screens behind, reconnect with family, and create unforgettable memories in the great outdoors.
Free tools. No sales pressure. Just better decisions.