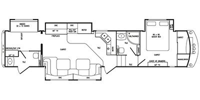
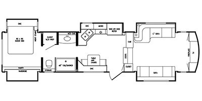
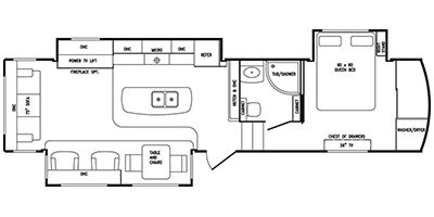
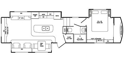
Browse Tradition Fifth Wheel Floorplans — Compare Specs & Tow Ratings
2014 – 2015
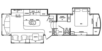
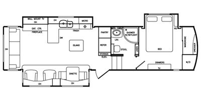
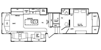
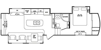
Launched in 2014, Tradition by DRV quickly made a mark in the fifth wheel segment with its focus on luxury and functionality. Over its brief active years, it introduced 20 distinct models, each designed to elevate the RV experience with sophisticated interiors and thoughtful layouts tailored for discerning travelers.

Leave the Noise Behind.
Reconnect Outdoors.
Our mission is to help people make well-informed RV buying decisions, so they can leave the noise and screens behind, reconnect with family, and create unforgettable memories in the great outdoors.
Free tools. No sales pressure. Just better decisions.