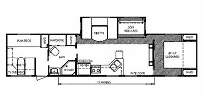
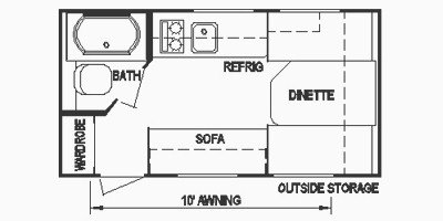
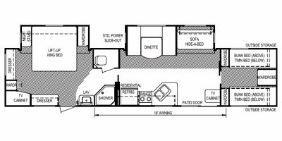
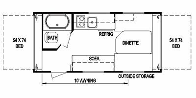
Pick a Nomad GL Floorplan — Get Specs & Tow Ratings
With a versatile lineup of 16 models, Nomad GL specializes in both travel trailers and destination RVs. Their designs cater to adventurers seeking mobility and those desiring a stationary retreat. This unique blend allows for tailored experiences, making every road trip or weekend getaway memorable and comfortable.

Leave the Noise Behind.
Reconnect Outdoors.
Our mission is to help people make well-informed RV buying decisions, so they can leave the noise and screens behind, reconnect with family, and create unforgettable memories in the great outdoors.
Free tools. No sales pressure. Just better decisions.