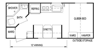
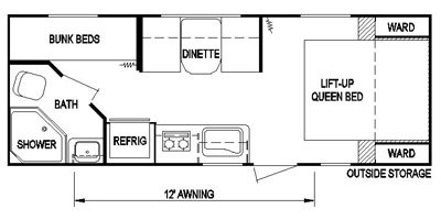
Pick a Eco Camp Floorplan — Get Specs & Tow Ratings
Eco Camp carved a niche in the travel trailer segment with its innovative designs between 2013 and 2014. These lightweight, eco-friendly models invited adventurers to explore nature without compromising comfort. With 16 distinct models, Eco Camp combined functionality with sustainability, making every journey an opportunity to connect with the great outdoors.
Eco Camp Travel Trailer Floorplans

Leave the Noise Behind.
Reconnect Outdoors.
Our mission is to help people make well-informed RV buying decisions, so they can leave the noise and screens behind, reconnect with family, and create unforgettable memories in the great outdoors.
Free tools. No sales pressure. Just better decisions.