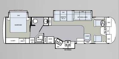
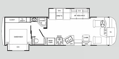
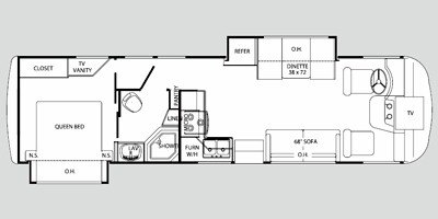
Select Arista Class A Floorplans — View Specs & Tow Ratings
Emerging onto the RV scene in 2008, Arista crafted a niche in the Class A market with a blend of luxury and practicality. Over its brief run until 2010, 16 distinct models showcased innovative designs and modern amenities, appealing to travelers seeking both comfort and adventure on the road.

Leave the Noise Behind.
Reconnect Outdoors.
Our mission is to help people make well-informed RV buying decisions, so they can leave the noise and screens behind, reconnect with family, and create unforgettable memories in the great outdoors.
Free tools. No sales pressure. Just better decisions.