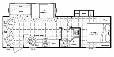
Explore Sky XT Models — Floorplans, Specs & Tow Ratings
The Sky XT travel trailers feature a unique aerodynamic design that enhances fuel efficiency while minimizing wind resistance. With a compact yet spacious interior, these trailers offer clever storage solutions and modern amenities, making them ideal for adventurers seeking both comfort and performance on the open road. Experience the thrill of travel with Sky XT.

Leave the Noise Behind.
Reconnect Outdoors.
Our mission is to help people make well-informed RV buying decisions, so they can leave the noise and screens behind, reconnect with family, and create unforgettable memories in the great outdoors.
Free tools. No sales pressure. Just better decisions.