Can Your Vehicle Tow This?
Enter your vehicle to check manufacturer-rated limits
Get Your Real Numbers
Tow rating is one limit — payload is what overloads first
Towing & Dimensions
| Specs | Value | Buy | Shop All | Top 5 |
|---|---|---|---|---|
| Width | 101 in | - |
Towing & Dimensions Best Sellers
Top-rated products RV owners use to upgrade or maintain their RV.
Electrical & Solar
| Specs | Value | Buy | Shop All | Top 5 |
|---|---|---|---|---|
| Battery Converter Amps | 80 | - | - | |
| Shore Power | 30 Amps | - | ||
| Battery Type | 12V Lead-Acid | Top 5 | ||
| Solar Pre-Wired | Optional | - | ||
| Inverter | Optional | - |
Electrical & Solar Best Sellers
Top-rated products RV owners use to upgrade or maintain their RV.
Tank Capacities
| Specs | Value | Buy | Shop All | Top 5 |
|---|---|---|---|---|
| Number Of Fresh Water Holding Tanks | 1 | - | ||
| Number Of Gray Water Holding Tanks | 1 | - | ||
| Number Of Black Water Holding Tanks | 1 | - | ||
| Fresh Water Tank Capacity | 100 gal | - | - | |
| Gray Water Tank Capacity | 75 gal | - | - | - |
| Black Water Tank Capacity | 50 gal | - | - | |
| Number Of Propane Tanks | 2 | - | ||
| Propane Tank Capacity | 80 lbs | - | - |
Tank Capacities Best Sellers
Top-rated products RV owners use to upgrade or maintain their RV.
Tires & Wheels
| Specs | Value | Buy | Shop All | Top 5 |
|---|---|---|---|---|
| Front Brake Type | Not Applicable | - | - | - |
| Rear Brake Type | Hydraulic Disc | - | - | - |
| Rear Tire | Goodyear® 17.5H Full Spec | - | - | - |
| Rear Tire Speed Rating | H | - | - | - |
| Rear Wheel Diameter | 17.5 | - | - | - |
| Spare Tire Location | Exterior Mounted | - | ||
| Tire Brand | Goodyear® | - | - | - |
| Wheels Composition | Aluminum | - | - | - |
Tires & Wheels Best Sellers
Top-rated products RV owners use to upgrade or maintain their RV.
Heating & Cooling
| Specs | Value | Buy | Shop All | Top 5 |
|---|---|---|---|---|
| Air Conditioning Type | Automatic | - | ||
| Water Heater Tank Capacity | 12 g | - | ||
| Heater Type | Automatic | - | ||
| Water Heater Pump Power Mode | Electrical / Propane | - | - | - |
Heating & Cooling Best Sellers
Top-rated products RV owners use to upgrade or maintain their RV.
Living Room / Bedroom(s)
| Specs | Value | Buy | Shop All | Top 5 |
|---|---|---|---|---|
| Full Size Master Bedroom Closet | Yes | - | - | - |
| Living Area Location | Center | - | - | - |
| Master Bedroom Door Style | Conventional Door | - | - | - |
| Master Bedroom Flooring Type | Carpet | - | - | - |
| Master Bedroom Location | Front | - | - | - |
| Master Bedroom Mirror Doors | Yes | - | - | - |
| Master Bedroom Shades / Curtains | Yes | - | - | - |
| Number Of Queen Size Beds | 1 | - | ||
| Number Of Recliner / Rockers | 3 | - | - | - |
Living Room / Bedroom(s) Best Sellers
Top-rated products RV owners use to upgrade or maintain their RV.
Kitchen / Dining
| Specs | Value | Buy | Shop All | Top 5 |
|---|---|---|---|---|
| Kitchen / Living Area Flooring Type | Carpet / Vinyl | - | - | - |
| Kitchen Location | Center | - | - | - |
| Kitchen Table Configuration | None | - | - | - |
| Number Of Oven Burners | 3 | - | - | - |
| Refrigerator Power Mode | Electric | - | - | - |
| Refrigerator Size | Full-Size | - | - | - |
Bathroom
| Specs | Value | Buy | Shop All | Top 5 |
|---|---|---|---|---|
| Bathroom Flooring Type | Vinyl | - | - | - |
| Bathroom Location | Center | - | - | - |
| Number Of Bathrooms | 1 | - | - | - |
| Toilet Type | Porcelain | Top 5 |
Bathroom Best Sellers
Top-rated products RV owners use to upgrade or maintain their RV.
Exterior
| Specs | Value | Buy | Shop All | Top 5 |
|---|---|---|---|---|
| Number of Awnings | 1 | - | ||
| Leveling Jack Type | Front Power / Rear Power | - | - | - |
| Number Of Axles | 3 | - | - | - |
| Sidewall Construction | Fiberglass | - | - | - |
| Number Of Emergency Exits | 1 | - | - | - |
| Number of Doors | 2 | - | ||
| Door Type | Plastic / Glass | - | ||
| Body Material | Aluminum | - | - | - |
Exterior Best Sellers
Top-rated products RV owners use to upgrade or maintain their RV.
Options
| Specs | Value | Buy | Shop All | Top 5 |
|---|---|---|---|---|
| Air Conditioning Prewiring | Yes | - | ||
| Battery Power Converter | Yes | - | - | - |
| Bunkhouse | No | - | - | - |
| Cable Prewiring | Yes | - | - | - |
| Heat Prewiring | Yes | - | - | - |
| Interior Wood Finish | Yes | - | - | - |
| Overhead Fan | Yes | - | - | |
| Phone Prewiring | No | - | - | - |
| Power Retractable Awning | Yes | - | - | - |
| Power Retractable Slideout | Yes | - | - | - |
| Refrigerator | Standard | - | - | - |
| Satellite | Yes | - | - | - |
| Satellite Prewiring | Yes | - | - | - |
| Screened Room | No | - | - | - |
| Sliding Glass Door | No | - | - | - |
| TV Antenna Prewiring | Yes | - | - | - |
| Wallpaper | Yes | - | - | - |
| Washer / Dryer Prewiring | Yes | - | - | - |
| Water Heater Tank Bypass | Yes | - | - | - |
Cargo
| Specs | Value | Buy | Shop All | Top 5 |
|---|---|---|---|---|
| Cargo Area Auxiliary Gas Tank Capacity | 60 / 227.1 gal/lbs | - | - | - |
| Cargo Area Flooring Type | Rubber | - | - | - |
| Cargo Area Rear Door Style | Ramp Door | - | - | - |
| Cargo Area Width | 101 / 2565.4 in | - | - | - |
Entertainment
| Specs | Value | Buy | Shop All | Top 5 |
|---|---|---|---|---|
| Number Of Televisions | 3 | - | ||
| Speaker Location | Interior | - | - |
Entertainment Best Sellers
Top-rated products RV owners use to upgrade or maintain their RV.
Instrumentation
| Specs | Value | Buy | Shop All | Top 5 |
|---|---|---|---|---|
| Number Of Radios | 1 | - | - | - |
Interior
| Specs | Value | Buy | Shop All | Top 5 |
|---|---|---|---|---|
| Material | Vinyl | - | - | - |
Quick Overview
| Specs | Value | Buy | Shop All | Top 5 |
|---|---|---|---|---|
| Parent Company | Thor Industries Inc. | - | - | - |
| Year | 2018 | - | - | - |
| Make | DRV | - | - | - |
| Display Name | Fullhouse JX390 | - | - | - |
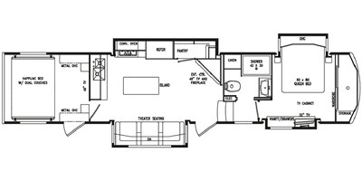
| Class | Toy Hauler | - | - | - |
| Max Sleeping Count | 6 | - | - | - |
| Number of Slideouts | 3 | - | - | - |
| Introduction Year | 2018 | - | - | - |
Essential Upgrades for the 2018 DRV Fullhouse Jx390
Owner Reviews
No reviews yet. Be the first to share your experience!
Frequently Asked Questions
As an Amazon Associate, we may earn from qualifying purchases. Your price stays the same.

Leave the Noise Behind.
Reconnect Outdoors.
Our mission is to help people make well-informed RV buying decisions, so they can leave the noise and screens behind, reconnect with family, and create unforgettable memories in the great outdoors.
Free tools. No sales pressure. Just better decisions.