Can Your Vehicle Tow This?
Enter your vehicle to check manufacturer-rated limits
Get Your Real Numbers
Tow rating is one limit — payload is what overloads first
Towing & Dimensions
| Specs | Value | Buy | Shop All | Top 5 |
|---|---|---|---|---|
| GVWR | 14500 lbs | - | - | - |
| Length | 382 in | - | ||
| Width | 95 in | - | ||
| Exterior Height | 128 in | - | ||
| Interior Height | 77 in | - | ||
| Tongue Weight | 5000 / 2268 lbs | - | - | - |
| Towing Capacity | 5000 / 2268 lbs | - | - | - |
Towing & Dimensions Best Sellers
Top-rated products RV owners use to upgrade or maintain their RV.
Electrical & Solar
| Specs | Value | Buy | Shop All | Top 5 |
|---|---|---|---|---|
| Battery Converter Amps | 45 | - | ||
| Shore Power | 30 Amps | - | ||
| Battery Type | 12V Lead-Acid | Top 5 | ||
| Solar Pre-Wired | Optional | - | ||
| Inverter | Optional | - |
Electrical & Solar Best Sellers
Top-rated products RV owners use to upgrade or maintain their RV.
Tank Capacities
| Specs | Value | Buy | Shop All | Top 5 |
|---|---|---|---|---|
| Number Of Fresh Water Holding Tanks | 1 | - | ||
| Number Of Gray Water Holding Tanks | 1 | - | ||
| Number Of Black Water Holding Tanks | 1 | - | ||
| Fresh Water Tank Capacity | 35 gal | - | ||
| Gray Water Tank Capacity | 34 gal | - | ||
| Black Water Tank Capacity | 26 gal | - | - | |
| Number Of Propane Tanks | 1 | - | ||
| Propane Tank Capacity | 76.3 lbs | - | - |
Tank Capacities Best Sellers
Top-rated products RV owners use to upgrade or maintain their RV.
Tires & Wheels
| Specs | Value | Buy | Shop All | Top 5 |
|---|---|---|---|---|
| Front Brake Type | Hydraulic Disc | - | - | - |
| Front Tire | 225/75R 16E Full Spec | - | - | - |
| Front Tire Aspect Ratio | 75 | - | - | - |
| Front Tire Speed Rating | E | - | - | - |
| Front Tire Width | 225 | - | - | - |
| Front Wheel Diameter | 16 | - | - | - |
| Rear Brake Type | Hydraulic Disc | - | - | - |
| Rear Tire | 225/75R 16E Full Spec | - | - | - |
| Rear Tire Aspect Ratio | 75 | - | - | - |
| Rear Tire Speed Rating | E | - | - | - |
| Rear Tire Width | 225 | - | - | - |
| Rear Wheel Diameter | 16 | - | - | - |
| Spare Tire Location | Exterior Mounted | - | ||
| Wheelbase | 220 / 5588 in | - | - | - |
| Wheels Composition | Steel | - | - | - |
Tires & Wheels Best Sellers
Top-rated products RV owners use to upgrade or maintain their RV.
Heating & Cooling
| Specs | Value | Buy | Shop All | Top 5 |
|---|---|---|---|---|
| Air Conditioning Type | Automatic | - | ||
| Water Heater Tank Capacity | 6 g | - | ||
| Heater Type | Automatic | - | ||
| Water Heater Pump Power Mode | Electrical / Propane | - | - | - |
Heating & Cooling Best Sellers
Top-rated products RV owners use to upgrade or maintain their RV.
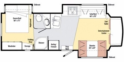
Living Room / Bedroom(s)
| Specs | Value | Buy | Shop All | Top 5 |
|---|---|---|---|---|
| Full Size Master Bedroom Closet | Yes | - | - | - |
| Living Area Location | Front | - | - | - |
| Master Bedroom Door Style | Accordion | - | - | - |
| Master Bedroom Flooring Type | Carpet | - | - | - |
| Master Bedroom Location | Rear | - | - | - |
| Master Bedroom Mirror Doors | Yes | - | - | - |
| Master Bedroom Shades / Curtains | Yes | - | - | - |
| Number Of Convertible / Sofa Beds | 2 | - | - | - |
| Number Of Queen Size Beds | 1 | - | ||
| Number Of Sofas | 1 | - | - | |
| Sofa Material | Vinyl | - | - | - |
Living Room / Bedroom(s) Best Sellers
Top-rated products RV owners use to upgrade or maintain their RV.
Kitchen / Dining
| Specs | Value | Buy | Shop All | Top 5 |
|---|---|---|---|---|
| Kitchen / Living Area Flooring Type | Carpet / Vinyl | - | - | - |
| Kitchen Location | Center | - | - | - |
| Kitchen Table Configuration | Bench Seats | - | - | - |
| Number Of Oven Burners | 3 | - | - | - |
| Refrigerator Power Mode | Electric / Propane | - | - | - |
| Refrigerator Size | Mid-Size | - | - | - |
Bathroom
| Specs | Value | Buy | Shop All | Top 5 |
|---|---|---|---|---|
| Bathroom Flooring Type | Vinyl | - | - | - |
| Bathroom Location | Center | - | - | - |
| Number Of Bathrooms | 1 | - | - | - |
| Toilet Type | Porcelain | Top 5 |
Bathroom Best Sellers
Top-rated products RV owners use to upgrade or maintain their RV.
Exterior
| Specs | Value | Buy | Shop All | Top 5 |
|---|---|---|---|---|
| Awning Length | 14 ft/m | - | ||
| Number of Awnings | 1 | - | ||
| Number Of Axles | 1 | - | - | - |
| Sidewall Construction | Fiberglass | - | - | - |
| Number of Doors | 1 | - | ||
| Door Type | Plastic / Glass | - | ||
| Brand Name | RV Radio® | - | - | - |
| Body Material | Aluminum | - | - | - |
Exterior Best Sellers
Top-rated products RV owners use to upgrade or maintain their RV.
Options
| Specs | Value | Buy | Shop All | Top 5 |
|---|---|---|---|---|
| Air Conditioning Prewiring | Yes | - | ||
| Battery Power Converter | Yes | - | - | - |
| Bunkhouse | No | - | - | - |
| Cable Prewiring | Yes | - | - | - |
| Heat Prewiring | Yes | - | - | - |
| Interior Wood Finish | Yes | - | - | - |
| Overdrive | Yes | - | - | - |
| Overhead Fan | Yes | - | - | |
| Phone Prewiring | Yes | - | - | - |
| Power Adjustable Seat | Yes | - | - | - |
| Power Retractable Awning | Yes | - | - | - |
| Power Retractable Slideout | Yes | - | - | - |
| Reclining Seats | Yes | - | - | - |
| Refrigerator | Standard | - | - | - |
| Satellite | Yes | - | - | - |
| Satellite Prewiring | Yes | - | - | - |
| Screened Room | No | - | - | - |
| Seat Armrests | Yes | - | - | - |
| Sliding Glass Door | No | - | - | - |
| Supercharged | No | - | - | - |
| Surround Sound | No | - | - | - |
| Turbocharged | No | - | - | - |
| TV Antenna Prewiring | Yes | - | - | - |
| Wallpaper | Yes | - | - | - |
| Washer / Dryer Prewiring | No | - | - | - |
| Water Heater Tank Bypass | Yes | - | - | - |
Cabin Specs
| Specs | Value | Buy | Shop All | Top 5 |
|---|---|---|---|---|
| Number Of Rows | 1 | - | - | - |
| Number Of Seats | 2 | - | - | - |
| Seat Material | Cloth | - | - | - |
| Seat Specifications | Standard | - | - | - |
| Seat Type | Bucket | - | - | - |
Chasis
| Specs | Value | Buy | Shop All | Top 5 |
|---|---|---|---|---|
| Chassis Brand | Ford | - | - | - |
| Chassis Model | E450 | - | - | - |
Drivetrain
| Specs | Value | Buy | Shop All | Top 5 |
|---|---|---|---|---|
| Driveline Type | 4X2 | - | - | - |
| Number Of Speeds | 5 | - | - | - |
| Transmission Brand | TorqShift | - | - | - |
| Transmission Type | Automatic | - | - | - |
Engine
| Specs | Value | Buy | Shop All | Top 5 |
|---|---|---|---|---|
| Carburetion | Standard | - | - | - |
| Carburetion Type | Fuel Injected | - | - | - |
| Cylinders | 10 | - | - | - |
| Engine Brand Name | Triton® | - | - | - |
| Engine Type | V10 | - | - | - |
| Horsepower | 305 bhp | - | - | - |
| Horsepower RPM | 4500 | - | - | - |
| Torque | 569.4 Nm | - | - | - |
Entertainment
| Specs | Value | Buy | Shop All | Top 5 |
|---|---|---|---|---|
| Number Of Discs | 1 | - | - | - |
| Number Of Televisions | 2 | - | ||
| Speaker Location | Interior | - | - |
Entertainment Best Sellers
Top-rated products RV owners use to upgrade or maintain their RV.
Fuel & MPG
| Specs | Value | Buy | Shop All | Top 5 |
|---|---|---|---|---|
| Fuel Capacity | 55 / 208.2 gal/l | - | - | |
| Fuel Type | Gas | - | - |
Fuel & MPG Best Sellers
Top-rated products RV owners use to upgrade or maintain their RV.
Instrumentation
| Specs | Value | Buy | Shop All | Top 5 |
|---|---|---|---|---|
| Number Of Radios | 2 | - | - | - |
Quick Overview
| Specs | Value | Buy | Shop All | Top 5 |
|---|---|---|---|---|
| Parent Company | Winnebago Industries | - | - | - |
| Year | 2013 | - | - | - |
| Make | Winnebago | - | - | - |
| Display Name | Aspect 30C | - | - | - |
| Class | Class C | - | - | - |
| Max Sleeping Count | 6 | - | - | - |
| Number of Slideouts | 3 | - | - | - |
| Introduction Year | 2009 | - | - | - |
Essential Upgrades for the 2013 Winnebago Aspect 30c
How We Scored This RV
Our MintRV Rating analyzes over 50 specifications across 5 key dimensions. Each dimension starts at 5.0 points and adjusts based on how this RV's specs compare to others in its class. Below is exactly how we calculated each score for this class c.
About Our Rating Methodology
MintRV Ratings are calculated using verified manufacturer specifications. We compare each RV against others in its class type and weight category. Scores are updated when new specs become available. Learn more about our methodology →
Owner Reviews
No reviews yet. Be the first to share your experience!
Frequently Asked Questions
As an Amazon Associate, we may earn from qualifying purchases. Your price stays the same.

Leave the Noise Behind.
Reconnect Outdoors.
Our mission is to help people make well-informed RV buying decisions, so they can leave the noise and screens behind, reconnect with family, and create unforgettable memories in the great outdoors.
Free tools. No sales pressure. Just better decisions.