Can Your Vehicle Tow This?
Enter your vehicle to check manufacturer-rated limits
Get Your Real Numbers
Tow rating is one limit — payload is what overloads first
Towing & Dimensions
| Specs | Value | Buy | Shop All | Top 5 |
|---|---|---|---|---|
| GVWR | 15500 lbs | - | - | - |
| Dry Weight | 12076 lbs | - | - | - |
| Hitch Weight | 2389 lbs | - | - | - |
| Payload Capacity | 3405 lbs | - | ||
| Length | 468 in | - | ||
| Width | 96 in | - | ||
| Exterior Height | 155 in | - | ||
| Interior Height | 80 in | - |
Towing & Dimensions Best Sellers
Top-rated products RV owners use to upgrade or maintain their RV.
Electrical & Solar
| Specs | Value | Buy | Shop All | Top 5 |
|---|---|---|---|---|
| Battery Converter Amps | 65 | - | - | |
| Shore Power | 30 Amps | - | ||
| Battery Type | 12V Lead-Acid | Top 5 | ||
| Solar Pre-Wired | Optional | - | ||
| Inverter | Optional | - |
Electrical & Solar Best Sellers
Top-rated products RV owners use to upgrade or maintain their RV.
Tank Capacities
| Specs | Value | Buy | Shop All | Top 5 |
|---|---|---|---|---|
| Number Of Fresh Water Holding Tanks | 1 | - | ||
| Number Of Gray Water Holding Tanks | 2 | - | ||
| Number Of Black Water Holding Tanks | 1 | - | ||
| Fresh Water Tank Capacity | 66 gal | - | - | |
| Gray Water Tank Capacity | 80 gal | - | - | - |
| Black Water Tank Capacity | 40 gal | - | - | |
| Number Of Propane Tanks | 2 | - | ||
| Propane Tank Capacity | 60 lbs | - |
Tank Capacities Best Sellers
Top-rated products RV owners use to upgrade or maintain their RV.
Tires & Wheels
| Specs | Value | Buy | Shop All | Top 5 |
|---|---|---|---|---|
| Rear Brake Type | Hydraulic Drum | - | - | - |
| Rear Tire | Goodyear® LT235/85R16E Full Spec | - | - | - |
| Rear Tire Aspect Ratio | 85 | - | - | - |
| Rear Tire Speed Rating | G | - | - | - |
| Rear Tire Width | 235 | - | - | - |
| Rear Wheel Diameter | 16 | - | - | - |
| Spare Tire Location | Exterior Mounted | - | ||
| Tire Brand | Goodyear® | - | - | - |
| Wheels Composition | Aluminum | - | - | - |
Tires & Wheels Best Sellers
Top-rated products RV owners use to upgrade or maintain their RV.
Heating & Cooling
| Specs | Value | Buy | Shop All | Top 5 |
|---|---|---|---|---|
| Air Conditioning Type | Automatic | - | ||
| Water Heater Tank Capacity | 12 g | - | ||
| Heater Type | Automatic | - | ||
| Water Heater Pump Power Mode | Electrical / Propane | - | - | - |
Heating & Cooling Best Sellers
Top-rated products RV owners use to upgrade or maintain their RV.
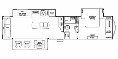
Living Room / Bedroom(s)
| Specs | Value | Buy | Shop All | Top 5 |
|---|---|---|---|---|
| Full Size Master Bedroom Closet | Yes | - | - | - |
| Living Area Location | Rear | - | - | - |
| Master Bedroom Door Style | Conventional Door | - | - | - |
| Master Bedroom Flooring Type | Carpet | - | - | - |
| Master Bedroom Location | Front | - | - | - |
| Master Bedroom Mirror Doors | Yes | - | - | - |
| Master Bedroom Shades / Curtains | Yes | - | - | - |
| Number Of Convertible / Sofa Beds | 1 | - | - | - |
| Number Of Queen Size Beds | 1 | - | ||
| Number Of Recliner / Rockers | 2 | - | - | - |
| Number Of Sofas | 1 | - | - | |
| Sofa Material | Cloth | - | - | - |
Living Room / Bedroom(s) Best Sellers
Top-rated products RV owners use to upgrade or maintain their RV.
Kitchen / Dining
| Specs | Value | Buy | Shop All | Top 5 |
|---|---|---|---|---|
| Kitchen / Living Area Flooring Type | Carpet / Vinyl | - | - | - |
| Kitchen Location | Center | - | - | - |
| Kitchen Table Configuration | Chairs | - | - | - |
| Number Of Oven Burners | 3 | - | - | - |
| Refrigerator Power Mode | Electric / Propane | - | - | - |
| Refrigerator Size | Mid-Size | - | - | - |
Bathroom
| Specs | Value | Buy | Shop All | Top 5 |
|---|---|---|---|---|
| Bathroom Flooring Type | Vinyl | - | - | - |
| Bathroom Location | Center | - | - | - |
| Number Of Bathrooms | 1 | - | - | - |
| Toilet Type | Porcelain | Top 5 |
Bathroom Best Sellers
Top-rated products RV owners use to upgrade or maintain their RV.
Exterior
| Specs | Value | Buy | Shop All | Top 5 |
|---|---|---|---|---|
| Leveling Jack Type | Front Power / Rear Manual | - | - | - |
| Number Of Axles | 2 | - | - | - |
| Sidewall Construction | Fiberglass | - | - | - |
| Number of Doors | 1 | - | ||
| Door Type | Plastic / Glass | - | ||
| Body Material | Aluminum | - | - | - |
Exterior Best Sellers
Top-rated products RV owners use to upgrade or maintain their RV.
Options
| Specs | Value | Buy | Shop All | Top 5 |
|---|---|---|---|---|
| Air Conditioning Prewiring | Yes | - | ||
| Battery Power Converter | Yes | - | - | - |
| Bunkhouse | No | - | - | - |
| Cable Prewiring | Yes | - | - | - |
| Heat Prewiring | Yes | - | - | - |
| Interior Wood Finish | Yes | - | - | - |
| Overhead Fan | Yes | - | - | |
| Phone Prewiring | Yes | - | - | - |
| Power Retractable Slideout | Yes | - | - | - |
| Refrigerator | Standard | - | - | - |
| Satellite Prewiring | Yes | - | - | - |
| Sliding Glass Door | No | - | - | - |
| TV Antenna Prewiring | Yes | - | - | - |
| Wallpaper | Yes | - | - | - |
| Washer / Dryer Prewiring | Yes | - | - | - |
| Water Heater Tank Bypass | Yes | - | - | - |
Entertainment
| Specs | Value | Buy | Shop All | Top 5 |
|---|---|---|---|---|
| Number Of Televisions | 1 | - |
Entertainment Best Sellers
Top-rated products RV owners use to upgrade or maintain their RV.
Interior
| Specs | Value | Buy | Shop All | Top 5 |
|---|---|---|---|---|
| Material | Cloth | - | - | - |
Quick Overview
| Specs | Value | Buy | Shop All | Top 5 |
|---|---|---|---|---|
| Parent Company | Forest River Inc. | - | - | - |
| Year | 2012 | - | - | - |
| Make | Forest River | - | - | - |
| Display Name | Cedar Creek 36CKTS | - | - | - |
| Class | Fifth Wheel | - | - | - |
| Max Sleeping Count | 6 | - | - | - |
| Number of Slideouts | 3 | - | - | - |
| Introduction Year | 2009 | - | - | - |
Essential Upgrades for the 2012 Forest River RV Cedar Creek 36ckts
How We Scored This RV
Our MintRV Rating analyzes over 50 specifications across 5 key dimensions. Each dimension starts at 5.0 points and adjusts based on how this RV's specs compare to others in its class. Below is exactly how we calculated each score for this fifth wheel.
About Our Rating Methodology
MintRV Ratings are calculated using verified manufacturer specifications. We compare each RV against others in its class type and weight category. Scores are updated when new specs become available. Learn more about our methodology →
Owner Reviews
No reviews yet. Be the first to share your experience!
Frequently Asked Questions
As an Amazon Associate, we may earn from qualifying purchases. Your price stays the same.

Leave the Noise Behind.
Reconnect Outdoors.
Our mission is to help people make well-informed RV buying decisions, so they can leave the noise and screens behind, reconnect with family, and create unforgettable memories in the great outdoors.
Free tools. No sales pressure. Just better decisions.