Can Your Vehicle Tow This?
Enter your vehicle to check manufacturer-rated limits
Get Your Real Numbers
Tow rating is one limit — payload is what overloads first
Towing & Dimensions
| Specs | Value | Buy | Shop All | Top 5 |
|---|---|---|---|---|
| Dry Weight | 3904 lbs | - | ||
| Hitch Weight | 480 lbs | - | ||
| Payload Capacity | 2046 lbs | - | ||
| Length | 285 in | - | ||
| Exterior Height | 119 in | - |
Towing & Dimensions Best Sellers
Top-rated products RV owners use to upgrade or maintain their RV.
Electrical & Solar
| Specs | Value | Buy | Shop All | Top 5 |
|---|---|---|---|---|
| Shore Power | 30 Amps | - | ||
| Battery Type | 12V Lead-Acid | Top 5 | ||
| Solar Pre-Wired | Optional | - | ||
| Inverter | Optional | - |
Electrical & Solar Best Sellers
Top-rated products RV owners use to upgrade or maintain their RV.
Tank Capacities
| Specs | Value | Buy | Shop All | Top 5 |
|---|---|---|---|---|
| Number Of Fresh Water Holding Tanks | 1 | - | ||
| Number Of Gray Water Holding Tanks | 1 | - | ||
| Number Of Black Water Holding Tanks | 1 | - | ||
| Fresh Water Tank Capacity | 55 gal | - | ||
| Number Of Propane Tanks | 2 | - | ||
| Propane Tank Capacity | 40 lbs | - | - |
Tank Capacities Best Sellers
Top-rated products RV owners use to upgrade or maintain their RV.
Tires & Wheels
| Specs | Value | Buy | Shop All | Top 5 |
|---|---|---|---|---|
| Rear Brake Type | Electric Drum | - | ||
| Wheels Composition | Steel | - | - | - |
Tires & Wheels Best Sellers
Top-rated products RV owners use to upgrade or maintain their RV.
Heating & Cooling
| Specs | Value | Buy | Shop All | Top 5 |
|---|---|---|---|---|
| Air Conditioning Type | Automatic | - | ||
| Water Heater Tank Capacity | 6 g | - | ||
| Heater Type | Automatic | - | ||
| Water Heater Pump Power Mode | Propane | - | - | - |
Heating & Cooling Best Sellers
Top-rated products RV owners use to upgrade or maintain their RV.
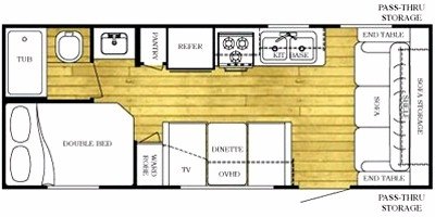
Living Room / Bedroom(s)
| Specs | Value | Buy | Shop All | Top 5 |
|---|---|---|---|---|
| Living Area Location | Front | - | - | - |
| Number Of Convertible / Sofa Beds | 2 | - | - | - |
| Number Of Double Beds | 1 | - | - | - |
| Number Of Sofas | 1 | - | - | |
| Sofa Material | Cloth | - | - | - |
Living Room / Bedroom(s) Best Sellers
Top-rated products RV owners use to upgrade or maintain their RV.
Kitchen / Dining
| Specs | Value | Buy | Shop All | Top 5 |
|---|---|---|---|---|
| Kitchen / Living Area Flooring Type | Vinyl | - | - | - |
| Kitchen Location | Center | - | - | - |
| Kitchen Table Configuration | Bench Seats | - | - | - |
| Number Of Oven Burners | 3 | - | - | - |
| Refrigerator Power Mode | Electric / Propane | - | - | - |
| Refrigerator Size | Mid-Size | - | - | - |
Bathroom
| Specs | Value | Buy | Shop All | Top 5 |
|---|---|---|---|---|
| Bathroom Flooring Type | Vinyl | - | - | - |
| Bathroom Location | Rear | - | - | - |
| Number Of Bathrooms | 1 | - | - | - |
| Toilet Type | Plastic | Top 5 |
Bathroom Best Sellers
Top-rated products RV owners use to upgrade or maintain their RV.
Exterior
| Specs | Value | Buy | Shop All | Top 5 |
|---|---|---|---|---|
| Number of Awnings | 1 | - | ||
| Number Of Axles | 2 | - | - | - |
| Sidewall Construction | Aluminum | - | - | - |
| Number of Doors | 1 | - | ||
| Door Type | Curtain | - | ||
| Body Material | Wood | - | - | - |
Exterior Best Sellers
Top-rated products RV owners use to upgrade or maintain their RV.
Options
| Specs | Value | Buy | Shop All | Top 5 |
|---|---|---|---|---|
| Air Conditioning Prewiring | Yes | - | ||
| Battery Power Converter | Yes | - | - | - |
| Cable Prewiring | Yes | - | - | - |
| Heat Prewiring | Yes | - | - | - |
| Interior Wood Finish | Yes | - | - | - |
| Metallic | No | - | - | - |
| Overhead Fan | Yes | - | - | |
| Phone Prewiring | No | - | - | - |
| Power Retractable Awning | No | - | - | - |
| Refrigerator | Standard | - | - | - |
| Satellite | No | - | - | - |
| Satellite Prewiring | No | - | - | - |
| Screened Room | No | - | - | - |
| Sliding Glass Door | No | - | - | - |
| Surround Sound | No | - | - | - |
| TV Antenna Prewiring | Yes | - | - | - |
| Wallpaper | Yes | - | - | - |
| Washer / Dryer Prewiring | No | - | - | - |
| Water Heater Tank Bypass | Yes | - | - | - |
Entertainment
| Specs | Value | Buy | Shop All | Top 5 |
|---|---|---|---|---|
| Number Of Discs | 1 | - | - | - |
| Speaker Location | Interior | - | - |
Entertainment Best Sellers
Top-rated products RV owners use to upgrade or maintain their RV.
Instrumentation
| Specs | Value | Buy | Shop All | Top 5 |
|---|---|---|---|---|
| Number Of Radios | 1 | - | - | - |
Quick Overview
| Specs | Value | Buy | Shop All | Top 5 |
|---|---|---|---|---|
| Parent Company | Gulf Stream Coach | - | - | - |
| Year | 2009 | - | - | - |
| Make | Gulf Stream | - | - | - |
| Display Name | Conquest Lite 20 BHL | - | - | - |
| Class | Travel Trailer | - | - | - |
| Max Sleeping Count | 6 | - | - | - |
Essential Upgrades for the 2009 Gulf Stream Conquest Lite-20-bhl
Owner Reviews
No reviews yet. Be the first to share your experience!
Frequently Asked Questions
As an Amazon Associate, we may earn from qualifying purchases. Your price stays the same.

Leave the Noise Behind.
Reconnect Outdoors.
Our mission is to help people make well-informed RV buying decisions, so they can leave the noise and screens behind, reconnect with family, and create unforgettable memories in the great outdoors.
Free tools. No sales pressure. Just better decisions.